关于广州市青少年发展基金会“清风学校中医药标本馆”项目采购公告
2023-08-11

广州市青少年发展基金会对“清风学校中医药标本馆”项目进行采购,现请符合相关要求及资质的供应商报价。

一、采购项目名称

“清风学校中医药标本馆”项目

二、项目内容及需求

(一)项目内容

“清风学校中医药标本馆”项目建设

(二)主办单位

广州市青少年发展基金会

(三)采购预算

人民币¥120,000.00元(大写:壹拾贰万元)

注:报价不得超过采购限价,否则作废标处理。

(四)时间及地点

1.时间:2023年8月至12月

2.地点:清远市清风学校

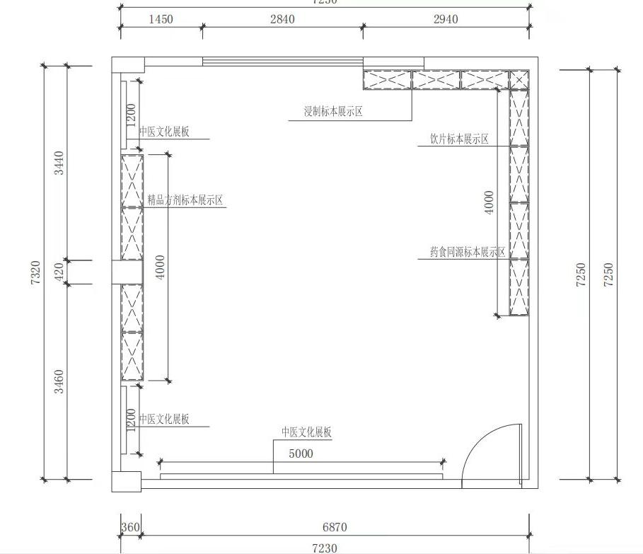
3.标本馆环境及尺寸图纸:

标本馆 1.png

标本馆 2.png

标本馆 图纸.png

(五)项目内容和指标要求

供应商应完成的服务包括且不限于如下工作:

1.标本馆的装饰内容,采购预算上限为:¥55,000.00元(大写:伍万伍仟元)

(1)负责“清风学校中医药标本馆”项目设计,包括但不限于:提供标本馆设计效果图;

(2)负责标本馆装饰工作,包括但不限于天花板、电路改造、照明灯具安装等;

(3)负责标本展示柜等硬件的采购及安装,展示柜大小和数量须能全部容纳所有标本的展示;

(4)标本馆展板内容设计及安装,包括但不限于中医药文化内容、标本馆介绍等;

2.中医药标本采购内容,采购预算上限为¥65,000.00元(大写陆万伍仟元)

(1)负责植物浸渍类标本采购,至少涵盖70个品种;

(2)负责饮片类标本采购,至少盖65个品种;

(3)负责方剂类标本采购,至少盖12个品种;

(4)负责药食同源类标本采购,至少盖50个品种;

3.协助主办单位完成其他相关工作。

三、报价人资质条件

(一)报价人符合《中华人民共和国政府采购法》第二十二条的规定。

(二)报价人必须是在中华人民共和国境内注册的具有独立承担民事责任能力的法人或事业单位或其他组织,具有从事本项目的经营范围和能力。

(三)本项目不接受联合体报价。

四、采购项目时间

报价截止时间为2023年8月17日17时

五、报价文件送达地点

请将报价文件、公司简介、营业执照复印件(盖章)、承办类似项目合同复印件等材料按照一式五份,密封后在指定时间内送达广州市越秀区人民北路875号407,请在信封或快递信封上注明项目名称和公司名称。

六、开审评审

(一)开审评审时间

2023年8月18日10时

(二)开审评审地点

广州市越秀区人民北路875号509会议室 

七、采购人的名称、地址

采购人:广州市青少年发展基金会

地  址:越秀区人民北路875号407

联系人:白小姐

电  话:020-83379579

八、其他

本公告最终解释权归采购方所有。

 

附件:市青基会招标参选文件格式

       附件:市青基会招标参选文件格式.doc



广州市青少年发展基金会

2023年8月11日